Позвоните или напишите нам для получения консультации от нашего эксперта

Липецк, Трудовая улица, 4

29 000 000 руб.


ХАРАКТЕРИСТИКИ

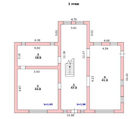
Тип объектаКоттедж

Площадь300 / 200 / 30

Комнат8

Этажей2

Материал домаКирпичный

ОСОБЕННОСТИ

В собственности более 5 летВ собственности более 5 лет

ВодоснабжениеВодоснабжение

ГазГаз

Надворные постройкиНадворные постройки

ОтоплениеОтопление

БРОКЕР

Карасева Ольга

Специалист по недвижимости


ОПИСАНИЕ

Эксклюзивное предложение в самом сердце Липецка!
Вблизи расположены Комсомольский пруд, Театральная площадь, вся необходимая инфраструктура в шаговой доступности.
В доме отличная планировка: на первом этаже уютная кухня-гостиная, просторная гостиная с действующим камином, потрясающая ванная комната и зимний сад.
На втором этаже совмещенный санузел, большая гардеробная и три спальни.
На участке разбит прекрасный сад, есть беседка, зоны отдыха, летний душ, гараж.
Очень приличные соседи.
В стоимость включена мебель, возможна также продажа без мебели.
Взрослые собственники, в собственности более 5 лет.
Звоните, покажем в удобное для вас время!


ПОХОЖИЕ ОБЪЕКТЫ

15 000 000 руб.

150 м²

4 ком

2

село Ярлуково, Рождественская улица, д. 6
КП Хрустальный пик

12 900 000 руб.

110 м²

4 ком

1

Липецк, Покровская улица, д. 50Б

Маргарита

25 000 000 руб.

215 м²

3 ком

2

Липецк, улица Маяковского, д. 84И

75 000 000 руб.

444 м²

4 ком

2

территория Ленинский Лесхоз, д. 54
КП Сосновый бор

50 000 000 руб.

341,5 м²

5 ком

2

село Большая Кузьминка, улица Франценюка, д. 15

21 600 000 руб.

194 м²

5 ком

2

село Кузьминские Отвержки, Школьная улица, д. 9

9 900 000 руб.

110 м²

3 ком

1

село Подгорное, улица Декабристов, д. 16

Эльвира

8 780 000 руб.

113,5 м²

4 ком

2

садоводческое некоммерческое товарищество Монтажник, 35-я линия, д. 691

Екатерина
Tg Whatsapp